Kopfzeile

PROVISIONSFREI ~ Reihenhäuser nahe Mühlwasser und Donauinsel ~ 111m² - 120m² ~ ab € 749.000,00

Haus zum Kauf in Wien (1220) / Objektnummer: 4448

Haus zum Kauf in Wien (1220) 749.900 €

120 m² Wohnfläche

DuscheBadewanneFußbodenheizungFliesenParkett
OBJEKTBESCHREIBUNG

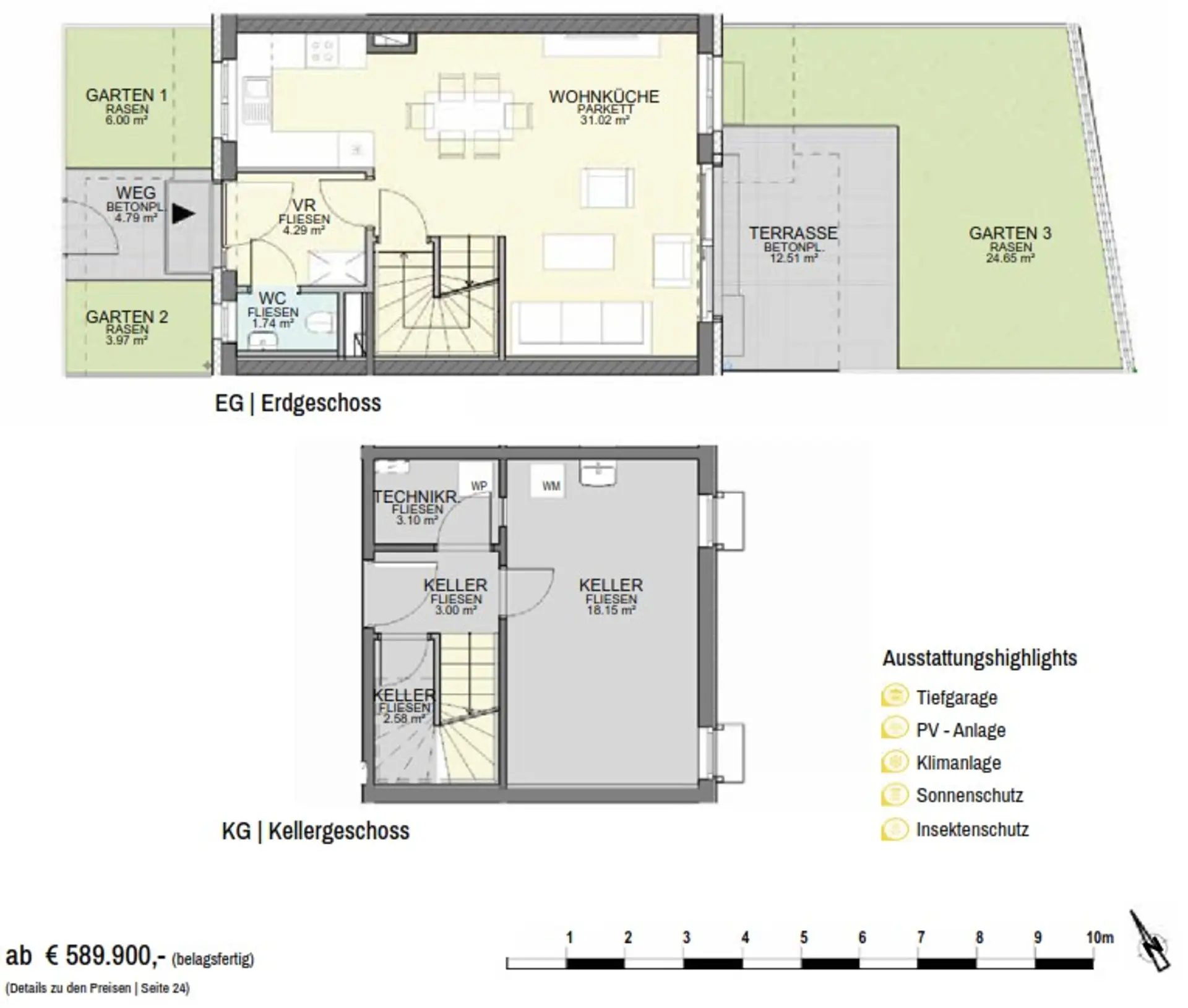
In attraktiver Grünruhelage nahe Mühlwasser entstehen acht moderne Reihenhäuser (114–120m²) mit
großzügigen Freibereichen (Garten, Terrasse, Balkon), aufgeteilt auf zwei Baukörper. Jedes Haus verfügt
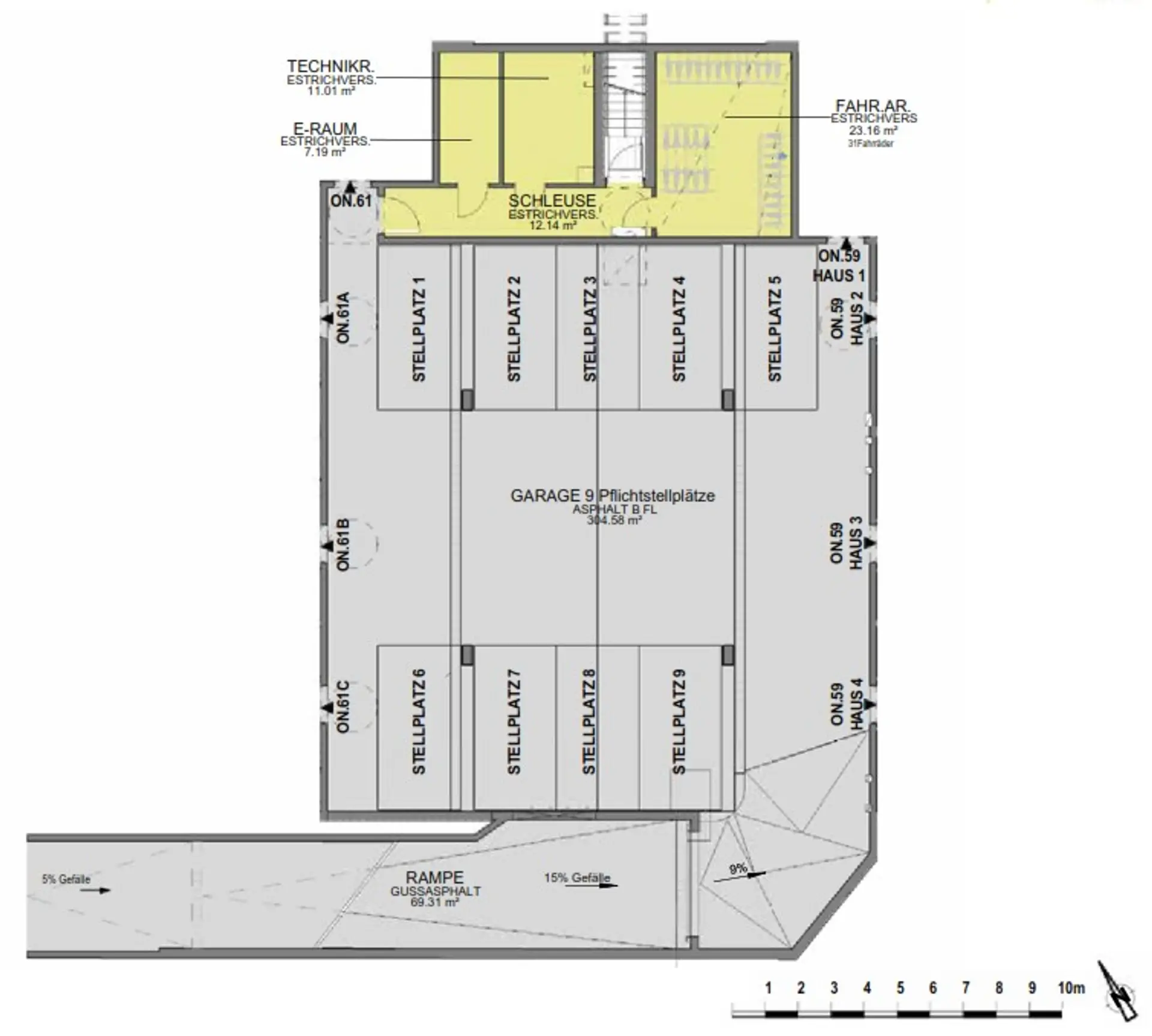
über Keller sowie einen direkten Anschluss an die Tiefgarage mit insgesamt neun Stellplätzen.

Die hochwertige Ausstattung umfasst unter anderem Fußbodenheizung, Fan-Coils zur Kühlung, Luftwärmepumpe,
PV-Anlage, 3-fach-Verglasung, elektrische Raffstores/Rollläden, Echtholz Parkettboden, Sanitär- und Elektroinstallationen.

Die Wohnanlage entspricht dem Niedrigenergiestandard (gemäß OIB-Richtlinie) und bietet dank durchdachter
Grundrisse, effizienter Raumaufteilung und naturnaher Umgebung eine ideale Wohnqualität für Familien.

PREIS

schlüsselfertig

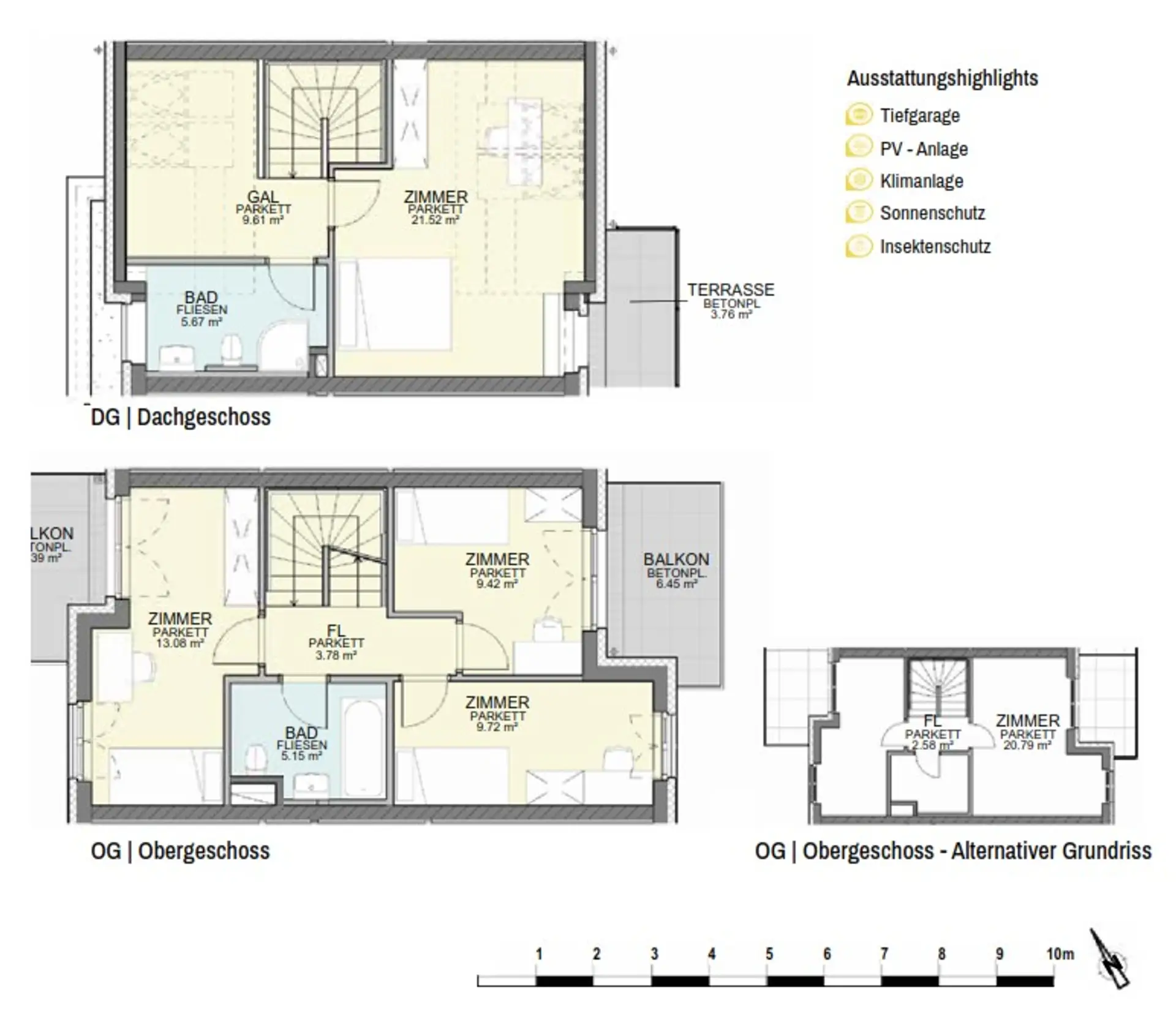
Top ON.61 - WNFL ca. 120 m² - 4 Zimmer - Terrasse 13,45 m² - Garten 69,79 m² - KAUFPREIS € 799.900,00
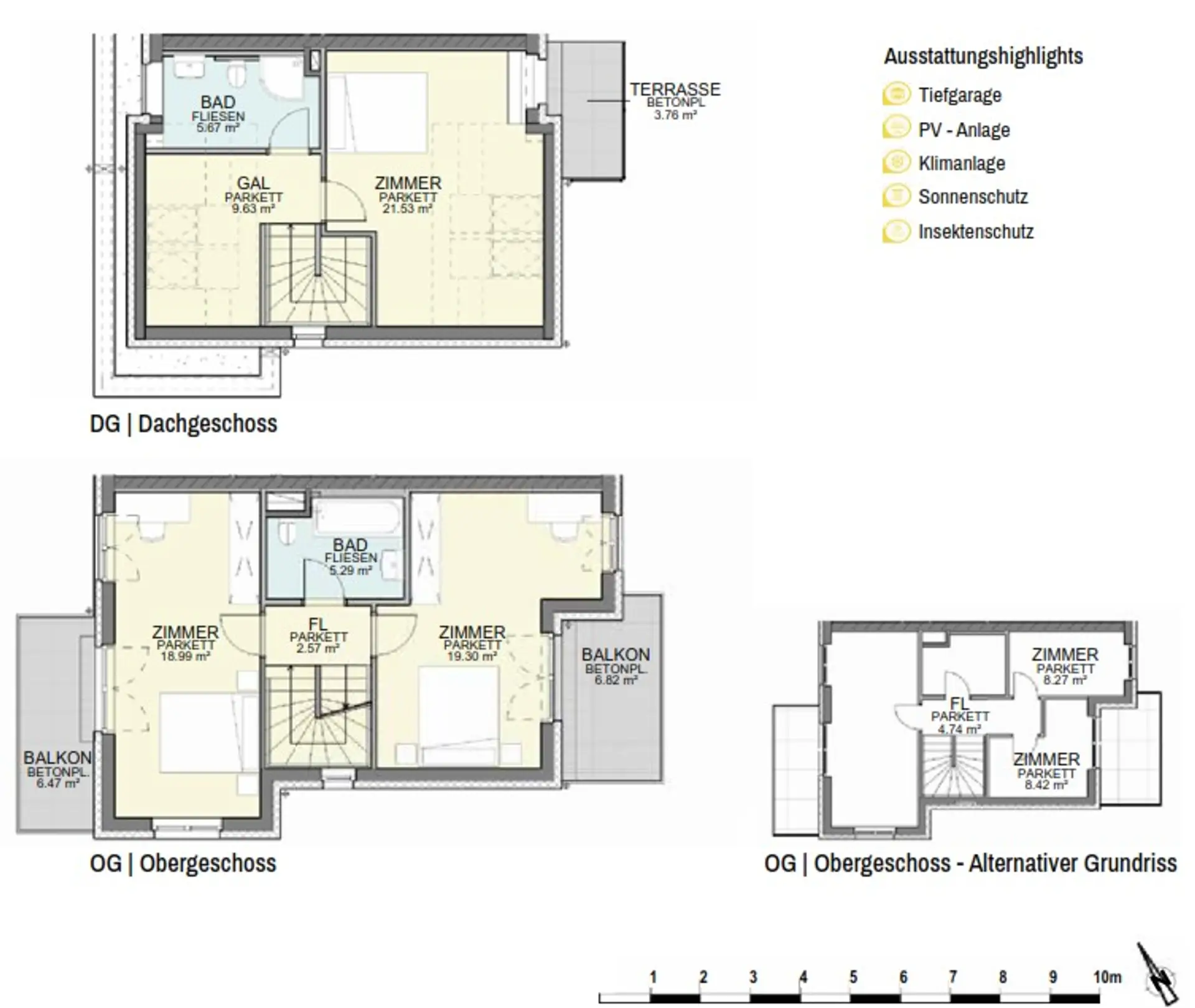
Top ON.61A - WNFL ca. 115 m² - 5 Zimmer - Terrasse 12,51 m² - Garten 43,61 m² - KAUFPREIS € 749.900,00
Top ON.61B - WNFL ca. 115 m² - 5 Zimmer - Terrasse 12,02 m² - Garten 44,75 m² - KAUFPREIS € 749.900,00
Top ON.61C - WNFL ca. 120 m² - 4 Zimmer - Terrasse 13,45 m² - Garten 69,79 m² - KAUFPREIS € 799.900,00

Top ON.59 H1 - WNFL ca. 120 m² - 4 Zimmer - Terrasse 13,45 m² - Garten 95,47 m² - KAUFPREIS € 859.900,00
Top ON.59 H2 - WNFL ca. 115 m² - 5 Zimmer - Terrasse 12,51 m² - Garten 39,41 m² - VERKAUFT
Top ON.59 H3 - WNFL ca. 115 m² - 5 Zimmer - Terrasse 12,02 m² - Garten 45,31 m² - VERKAUFT
Top ON.59 H4 - WNFL ca. 120 m² - 4 Zimmer - Terrasse 13,45 m² - Garten 149,56 m² - KAUFPREIS € 899.900,00


Garagenplatz € 30.000,00

LAGE
Ruhige Lage im 22. Bezirk nahe Mühlwasser. Gute Anbindung durch Busstation und Autobahn in unmittelbarer Nähe. Wohngegend ist eine Grünlage.

Naherholungsgebiete in unmittelbarer nähe

  • U-Bahn ca. 15 Minuten entfernt
  • Busstation 2 Minuten entfernt
  • Schillerwasser
  • Mühlwasser
  • Donauinsel
  • Nationalpark Donauauen


Kaufnebenkosten
- Grunderwerbsteuer (3,5% des Kaufpreises)
- gerichtliche Eintragungsgebühr (1,1% des Kaufpreises)
- Kosten für Vertragserrichtung und grundbücherliche Abwicklung
- Vermittlungsprovision: 3% + 20% USt.

WIR FREUEN UNS AUF IHRE ANFRAGE UND BERATEN SIE GERNE
A.M.T. Unternehmensberatungsges.m.b.H. Bauträger Immobilien
1130 Wien Hietzinger Hauptstrasse 51
Tel.: +43 1 876 90 30
E-Mail: office@amt-immobilien.at
Energiedaten:
 Energieausweis: liegt vor

Lage und Verkehrsanbindung

Sonnige Lage, Grünlage, Ruhelage, Gute Verkehrslage, UBahn-Nähe, Nähe öffentliche Verkehrsmittel

Lageplan

Inhalt wird geladen
Preise
Kaufpreis
749.900,00 €
Kaufpreis/m²
6.755,85 €
Fakten
Objekttyp
Haus, Wohnung
Wohnfläche
120 m²
Baujahr
2026
Gebäude
Neubau
Zustand
Erstbezug
Status
verfügbar
A.M.T. Unternehmenberatungsgesellschaft m.b.H.  Bauträger Immobilien

Ganster Christopher

A.M.T. Unternehmenberatungsgesellschaft m.b.H. Bauträger Immobilien