Kopfzeile

Neubau-Appartment ~ 2 Zimmer ~ ideal für Kurzzeitvermietung

Wohnung zum Kauf in Bad Radkersburg (8490) / Objektnummer: 4387

Wohnung zum Kauf in Bad Radkersburg (8490) 278.000 €

2 Zimmer

1 Badezimmer

57 m² Wohnfläche

32 m² Außenfläche

barrierefreiTerrasseZentralheizungFußbodenheizungGartenflächeParkett
Weitere Objekte finden Sie auf unserer Hompage https://amt-immobilien.at. Energiekosteneinsparung https://www.youtube.com/watch?v=qtfqzYHn8Ic
 
Projekt in Bad Radkersburg - in Bau befindlich - Fertigstellung Frühjahr 2025
Das Projekt umfasst 45 hochwertige Apartments, aufgeteilt auf drei Baukörper, und befindet sich im malerischen Kurort Bad Radkersburg.
 
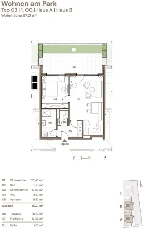
Eckdaten zur Wohnung 3A & 3B - 1. OG
 - Wohnfläche 57,21m²
- Wohnküche 28,48 m² und Ausgang auf die Terrasse und den Gaten
- Schlafzimmer ca. 14 m² m²
- großzügiges Badezimmer
- Außenfläche gesamt 32,05 m²
- nördliche Ausrichtung
- Einlagerungsraum im Kellergeschoss
- Moderne Architektur mit hochwertigen Materialien
- für jede Einheit wurde ein PKW-Stellplatz erroichtet - Kosten € 25.000,00.
 
Ausstattung
- Heizung mittels Fernwärme (Abrechnung über Wärmezähler)
- Übertragung über Fußbodenheizung
- 3-fach-verglaste Kunststoff-Alu-Fenster und elektrische Raffstores für die Beschattung
- Fußboden aus Natureichenparkett
- Feinsteinzeug in den Nassräumen
- Terrassen mit 50x50cm Betonplatten
- bodengleiche Duschen
- Kühlung der Räume über Fan Coils
- Energieeffizienz durch PV-Anlage

LAGE
- diverse Einkaufsmöglichkeiten in wenigen Minuten erreichbar
- Stadtkern nur 5 Gehminuten entfernt
- Die Therme Bad Radkersburg ist in nur 2 Gehminuten zu erreichen
- Ausgedehnte Spaziergänge und Wanderungen durch Nordslowenien
- Radtouren durch die umliegenden Weinregionen im Burgenland und in der Steiermark

Anwenungsmöglichkeiten
Dank der starken Nachfrage nach Ferienwohnungen und Zweitwohnsitzen in Bad Radkersburg sowie der Möglichkeit zur Vermietung über Plattformen wie AirBnB, bietet dieses Angebot auch Potenzial für eine ordentliche Rendite.
Sowohl langfristige als auch kurzfistige Vermietungsmodelle sind möglich.
 
Finanzierung
mit geringen Eigenmitteln möglich. Nähere Ausführungen gerne bei einem persönlichen Termin
 
 
Details der Wohnungen - Anlegerpreise sind ebenfalls möglich
HAUS A
1.OG
Top 1 WNFL 66,77 m² - 3 Zimmer - Balkon 7,90 m² - Terrasse 8,60 m² - Garten 21,88 m² - Reserviert!
Top 2 WNFL 54,11 m² - 2 Zimmer - Terrasse 20,35 m² - Garten 109,70 m² - KAUFPREIS € Reserviert
Top 3 WNFL 57,21 m² - 2 Zimmer - Terrasse 18,72 m² - Garten 13,33 m² - KAUFPREIS € 280.000,00
Top 4 WNFL 52,00 m² - 2 Zimmer - Terrasse 20,35 m² - Garten 93,40 m² - KAUFPREIS € 250.000,00
2. OG
Top 5 WNFL 66,77 m² - 3 Zimmer - Balkon 7,90 m² - KAUFPREIS € 299.000,00
Top 6 WNFL 54,11 m² - 2 Zimmer - Balkon 7,81 m² - KAUFPREIS € 249.000,00
Top 7 WNFL 57,21 m² - 2 Zimmer - Balkon 11,96 m² - KAUFPREIS € 275.000,00
Top 8 WNFL 52,00 m² - 2 Zimmer - Balkon 7,81 m² - KAUFPREIS € 247.000,00
3. OG
Top 9 WNFL 66,77 m² - 3 Zimmer - Balkon 7,90 m² - KAUFPREIS € 299.000,00
Top 10 WNFL 54,11 m² - 2 Zimmer - Balkon 7,81 m² - KAUFPREIS € 245.000,00
Top 11 WNFL 57,21 m² - 2 Zimmer - Balkon 11,96 m² - KAUFPREIS € 275.000,00
Top 12 WNFL 52,00 m² - 2 Zimmer - Balkon 7,81 m² - KAUFPREIS € 247.000,00
DG
Top 13 WNFL 46,71 m² - 2 Zimmer - Terasse 28,00 m² - KAUFPREIS € 268.000,00
Top 14 WNFL 57,74 m² - 3 Zimmer - Terasse 45,07 m² - KAUFPREIS € 350.000,00
Top 15 WNFL 53,29 m² - 3 Zimmer - Terrasse 36,97 m² - KAUFPREIS € 315.000,00
Planänderungen oder Zusammenlegungen sind derzeit noch möglich.
 

HAUS B
1.OG
Top 1 WNFL 66,77 m² - 3 Zimmer - Balkon 7,90 m² - Terasse 8,60 m² - Garten 32,91 m² - KAUFPREIS € 308.00,00
Top 2 WNFL 54,11 m² - 2 Zimmer - Terasse 20,35 m ² - Garten 90,66 m² - KAUFPREIS € 263.000,00
Top 3 WNFL 57,21 m² - 2 Zimmer - Terasse 18,72 m² - Garten 13,33 m² - KAUFPREIS € 278.000,00
Top 4 WNFL 52,00 m² - 2 Zimmer - Terasse 20,35 m² - Garten 93,40 m² - KAUFPREIS € 248.000,00
2. OG
Top 5 WNFL 66,77 m² - 3 Zimmer - Balkon 7,90 m² - KAUFPREIS € 298.000,00
Top 6 WNFL 54,11 m² - 2 Zimmer - Balkon 7,81 m² - KAUFPREIS € 242.000,00
Top 7 WNFL 57,21 m² - 2 Zimmer - Balkon 11,96 m² - KAUFPREIS € 263.000,00
Top 8 WNFL 52,00 m² - 2 Zimmer - Balkon 7,81 m² - KAUFPREIS € 240.000,00
3. OG
Top 9 WNFL 66,77 m² - 3 Zimmer - Balkon 7,90 m² - KAUFPREIS € 298.000,00
Top 10 WNFL 54,11 m² - 2 Zimmer - Balkon 7,81 m² - KAUFPREIS € 242.000,00
Top 11 WNFL 57,21 m² - 2 Zimmer - Balkon 11,96 m² - KAUFPREIS € 265.000,00
Top 12 WNFL 52,00 m² - 2 Zimmer - Balkon 7,81 m² - KAUFPREIS € 240.000,00
DG
Top 13 WNFL 46,65 m² - 2 Zimmer - Terasse 28,00 m² - KAUFPREIS € 268.000,00
Top 14 WNFL 57,74 m² - 3 Zimmer - Terasse 45,07 m² - KAUFPREIS € 350.000,00
Top 15 WNFL 53,29 m² - 3 Zimmer - Terasse 36,97 m² - KAUFPREIS € 315.000,00
Planänderungen oder Zusammenlegungen sind derzeit noch möglich.

?Ergänzend zu unserem Angebot begleiten wir Sie bei der Planung, Renovierung oder Sanierung Ihrer Immobilie –
zuverlässig und kompetent. Details dazu entnehmen Sie bitte dem Exposé.
 
Kaufnebenkosten:
Vermittlungsprovision 3% +UST
Grunderwerbsteuer 3,5%
gerichtliche Eintragungsgebühr 1,1%
Kosten für Vertragserrichtung und grundbücherliche Abwicklung
 
WIR FREUEN UNS AUF IHRE ANFRAGE UND BERATEN SIE GERNE

A.M.T. Unternehmensberatungsges.m.b.H. Bauträger Immobilien
1130 Wien Hietzinger Hauptstrasse 51
Tel.: +43 1 876 90 30
E-Mail: office@amt-immobilien.at 

Lage und Verkehrsanbindung

Wohngebiet, Kurort, Aussichtslage

Grundriss

Lageplan

Inhalt wird geladen
Preise
Kaufpreis
278.000,00 €
Kaufpreis/m²
4.859,29 €
Fakten
Objekttyp
Wohnung, Lager, Gastgewerbe
Wohnfläche
57 m²
Gartenfläche
13 m²
Toiletten
1
Terrassen
1
Baujahr
2024
Status
verfügbar
A.M.T. Unternehmenberatungsgesellschaft m.b.H.  Bauträger Immobilien

Ganster Christopher

A.M.T. Unternehmenberatungsgesellschaft m.b.H. Bauträger Immobilien