Kopfzeile

neu — 4 Reihenhäuser in Eisenstadt ~ von 101 m² - 128 m² ~ ab € 479.000,00

Haus zum Kauf in Eisenstadt (7000), Hirterberggasse / Objektnummer: 4557

Haus zum Kauf in Eisenstadt (7000) 479.000 €

4 Zimmer

128 m² Wohnfläche

FußbodenheizungFliesenParkett

Modernes Wohnen mit Weitblick – Exklusive Doppelhaushälften in Eisenstadt


In ruhiger, familienfreundlicher Lage von Eisenstadt entsteht ein Wohnprojekt „Modernes Wohnen mit Weitblick“.
Dieses moderne Neubauprojekt vereint zeitgemäße Architektur, durchdachte Grundrisse und nachhaltige Bauweise
zu einem idealen Zuhause für Familien, Paare und anspruchsvolle Eigennutzer.

Das Projekt

Das Projekt umfasst 4 moderne Reihenhäuser, die sich durch klare Architektur und hochwertige Massivbauweise auszeichnen.

Highlights auf einen Blick:

  • Wohnflächen ca. 101 m² bis 128 m²
  • Eigengärten und großzügige Terrassen
  • Teilweise Balkone im Obergeschoss
  • 2 PKW-Stellplätze je Einheit
  • Optionale Kellergeschosse möglich


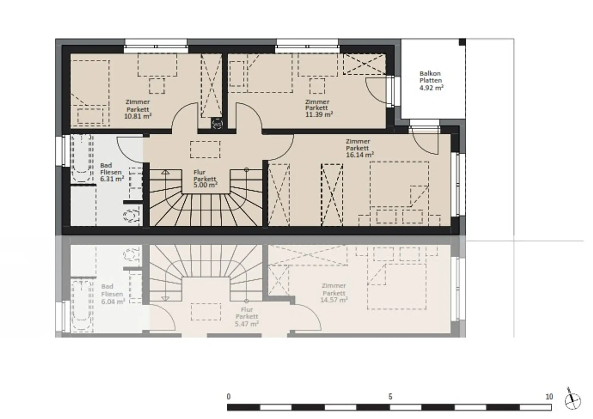
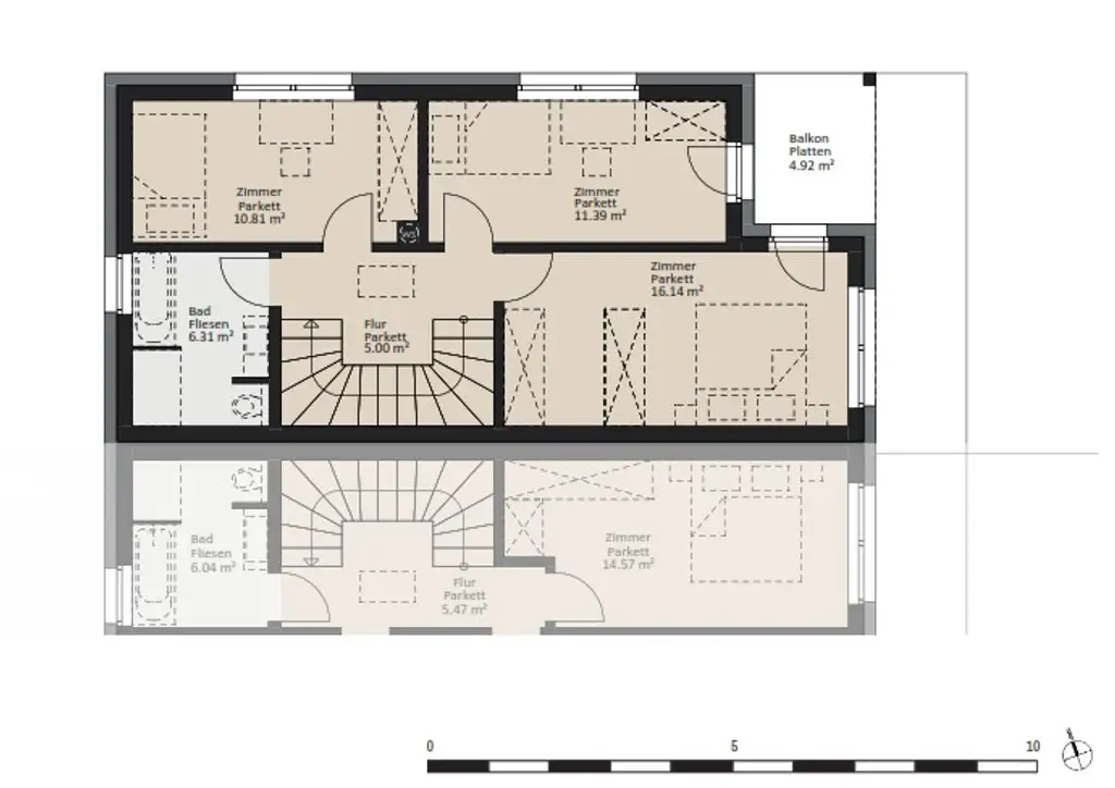
Grundrisse & Raumkonzept

Die Häuser erstrecken sich über zwei Ebenen und bieten eine durchdachte Raumaufteilung:

Erdgeschoss:


  • Großzügige Wohnküche mit direktem Zugang zur Terrasse und Garten
  • Vorraum
  • Gäste-WC
  • Technik- bzw. Hauswirtschaftsraum
  • Optional zusätzliches Zimmer (bei Haus 3 & 4)

Obergeschoss:


  • 3 Schlafzimmer
  • Großzügiges Badezimmer
  • Teilweise Balkon mit Zugang von den Schlafzimmern

Die größeren Einheiten bieten zusätzliche Flexibilität, z. B. für Homeoffice oder Gästezimmer.

Ausstattung & Bauweise

Die Ausführung erfolgt in hochwertiger Massivbauweise mit Fokus auf Energieeffizienz und Wohnkomfort:

Bau & Technik:

  • Ziegelmassivbau mit Wärmedämmverbundsystem
  • Luftwärmepumpe
  • Fußbodenheizung in allen Wohnräumen

Innenausstattung:

  • Parkettböden in Wohn- und Schlafräumen
  • Großformatige Fliesen in Nassräumen
  • Marken-Sanitärprodukte (u. a. Laufen, Grohe)
  • Hochwertige Innentüren und Edelstahlbeschläge

Außenbereich:

  • Terrassen mit Betonplatten
  • Eigengärten mit Einfriedung
  • Elektrische Beschattung (Raffstores/Rollläden)
  • 3-fach verglaste Fenster


Kaufpreise schlüsselfertig


Haus 1: ca. € 499.900,-
Haus 2: ca. € 479.900,-
Haus 3: ca. € 579.900,-
Haus 4: ca. € 649.900,-

Baustart Q2 2026

Fertigstellung Q1 2028



KAUFNEBENKOSTEN

  • 3,5 % Grunderwerbsteuer
  • 1,1 % Eintragungsgebühr
  • Vertragserrichtungskosten
  • Vermittlungsprovision: 3 % + 20 % USt

WIR FREUEN UNS AUF IHRE ANFRAGE UND BERATEN SIE GERNE

A.M.T. Unternehmensberatungsges.m.b.H. Bauträger Immobilien
1130 Wien Hietzinger Hauptstrasse 51
Tel.: +43 1 876 90 30
E-Mail: office@amt-immobilien.at 

Lage und Verkehrsanbindung

Lage & InfrastrukturDie Lage überzeugt durch die perfekte Kombination aus Ruhe und hervorragender Anbindung:Stadtzentrum Eisenstadt in wenigen Minuten erreichbarSehr gute öffentliche Verkehrsanbindung (Bus und Bahn) Richtung Wien, Wr. Neustadt und MattersburgAutobahn A3 – ca. 45 Minuten nach WienNahversorgung, Ärzte und Krankenhaus in unmittelbarer UmgebungSchulen und Bildungseinrichtungen von Kindergarten bis FH BurgenlandHoher Freizeitwert durch Schlosspark Esterházy, Rad- und WanderwegeIn der Nähe:Arzt: max. 3-5min zu FußApotheke: max. 3-5min zu FußKindergarten: max. 3-5min zu FußSchule: max. 15min zu FußUniversität: max. 30min öffentlichSupermarkt: max. 15min zu FußBäckerei: max. 15min zu FußGastronomie: max. 15min zu FußGeschäftsstraße: max. 15min zu FußÖffentlicher Nahverkehr: max. 30min öffentlichBahn: max. 15min zu FußAutobahnanschluss: max. 30min öffentlichBank/Geldautomat: max. 15min zu FußPost: max. 15min zu FußPolizei: max. 15min zu Fuß

Grundrisse

Lageplan

Inhalt wird geladen
Preise
Kaufpreis
479.000,00 €
Kaufpreis/m²
4.742,57 €
Provision
3% plus 20% USt.
Fakten
Objekttyp
Haus
Wohnfläche
128 m²
Baujahr
2026
Gebäude
Neubau
Zustand
Erstbezug
Status
verfügbar
A.M.T. Unternehmenberatungsgesellschaft m.b.H.  Bauträger Immobilien

A.M.T. Unternehmenberatungsgesellschaft m.b.H. Bauträger Immobilien

A.M.T. Unternehmenberatungsgesellschaft m.b.H. Bauträger Immobilien