Kopfzeile

neu — 2 Zimmerwohnung ~ südlich ausgerichtet ~ inkl. Parkplatz

Wohnung zum Kauf in Brunn am Gebirge (2345) / Objektnummer: 4544

Wohnung zum Kauf in Brunn am Gebirge (2345) 292.500 €

2 Zimmer

1 Badezimmer

54 m² Wohnfläche

41 m² Außenfläche

TerrasseBadewanneGartenflächeKellerflächeFliesenParkett

Sonnige 2 Zimmer Wohnung mit Terrasse & Stellplatz – Ruhelage im Innenhof


Diese südlich ausgerichtete 2-Zimmer in Brunn am Gebirge vereint Ruhe, Qualität und sehr gute
Infrastruktur. Die Wohnung liegt gänzlich im Innenhof und bietet damit ein angenehmes und
ruhiges Wohngefühl – ideal für Eigennutzer wie auch für Anleger.


Wohnen mit Licht & Garten

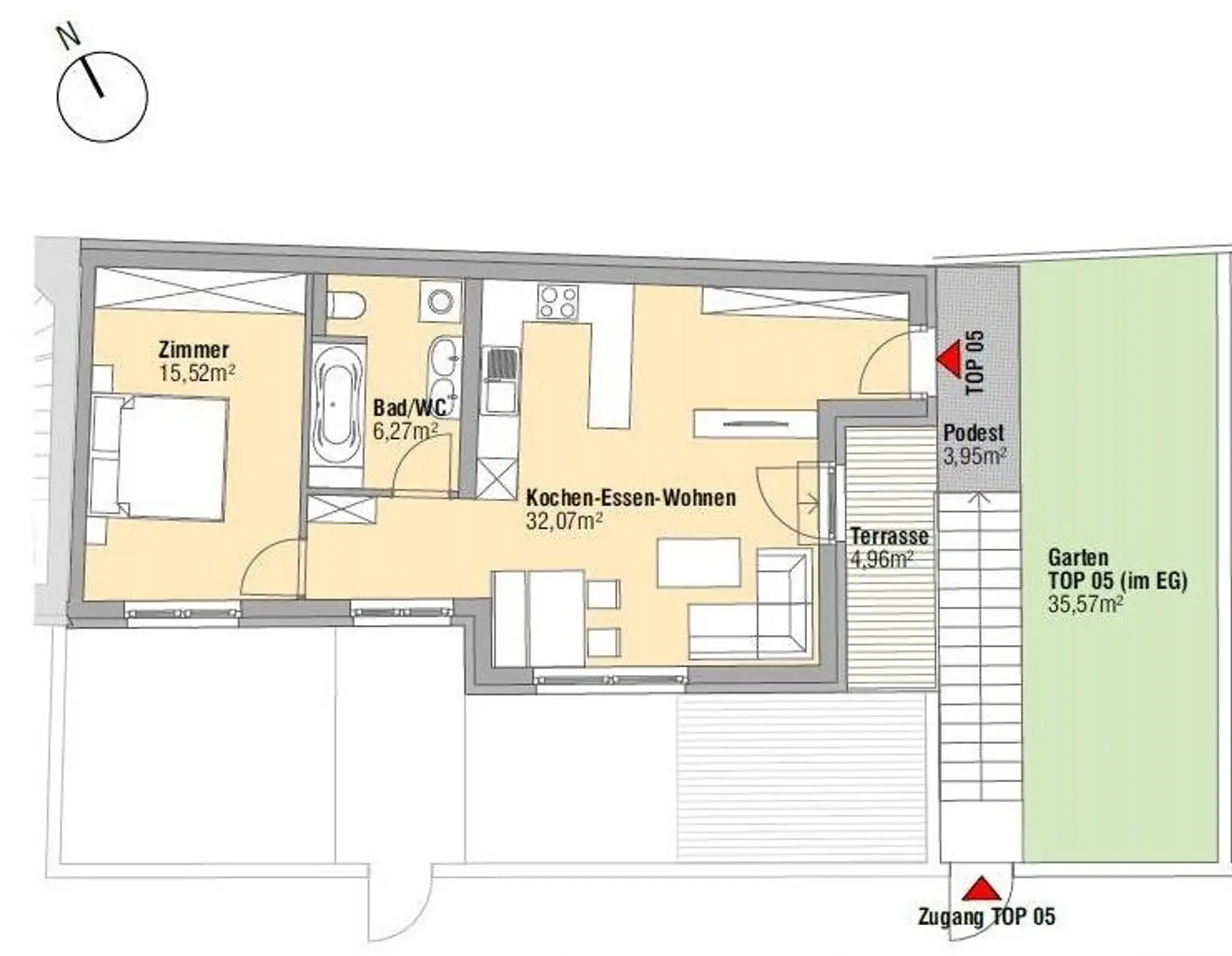
Auf rund 53,86 m² Wohnfläche erwartet Sie eine angenehme Raumaufteilung:


  • Helles Wohn-Esszimmer mit direktem Zugang zur Terrasse
  • Ca. 5 m² Terrasse sowie ca. 35 m² Eigengarten
  • Badezimmer mit Badewanne


  • 32,07 m² Kochen-Essen-Wohnen
  • 15,52 m² Zimmer
  • 6,27 m² Bad/WC
  • 4,96 m² Terrasse
  • 35,57 m² Garten

Die Südausrichtung sorgt ganztägig für ein freundliches, lichtdurchflutetes Ambiente.


Hochwertige Ausstattung



  • Echtholzparkett in den Wohnräumen
  • Feinsteinzeug im Badezimmer
  • Einbauküche inkl. Geschirrspüler & Glaskeramikfeld
  • Radiatorenheizung

Ein eigener Stellplatz sowie ein Kellerabteil sind bereits im Angebot inkludiert.


Lage – ruhig & dennoch bestens angebunden



  • Ca. 10 Minuten fußläufig zum Bahnhof
  • Bäckereien & Nahversorgung in unmittelbarer Umgebung
  • Ärzte in direkter Nähe
  • Größere Einkaufsmöglichkeiten in ca. 10 Minuten mit dem Auto erreichbar

Die Kombination aus ruhiger Innenhoflage und sehr guter Infrastruktur macht diese Immobilie besonders attraktiv –
sowohl für die Eigennutzung als auch als wertstabile Anlage.


Kaufpreis: € 292.500,–



KAUFNEBENKOSTEN


  • 3,5 % Grunderwerbsteuer
  • 1,1 % Eintragungsgebühr
  • Vertragserrichtungskosten
  • Vermittlungsprovision: 3 % + 20 % USt


WIR FREUEN UNS AUF IHRE ANFRAGE UND BERATEN SIE GERNE

A.M.T. Unternehmensberatungsges.m.b.H. Bauträger Immobilien
1130 Wien Hietzinger Hauptstrasse 51
Tel.: +43 1 876 90 30
E-Mail: office@amt-immobilien.at 

Lage und Verkehrsanbindung

Lage – ruhig & dennoch bestens angebundenCa. 10 Minuten fußläufig zum BahnhofBäckereien & Nahversorgung in unmittelbarer UmgebungÄrzte in direkter NäheGrößere Einkaufsmöglichkeiten in ca. 10 Minuten mit dem Auto erreichbarDie Kombination aus ruhiger Innenhoflage und sehr guter Infrastruktur macht diese Immobilie besonders attraktiv – sowohl für die Eigennutzung als auch als wertstabile Anlage.In der Nähe:Arzt: max. 3-5min zu FußApotheke: max. 3-5min zu FußKindergarten: max. 15min zu FußSchule: max. 15min zu FußUniversität: max. 30min öffentlichSupermarkt: max. 10min mit PKWBäckerei: max. 3-5min zu FußGastronomie: max. 3-5min zu FußGeschäftsstraße: max. 30min öffentlichÖffentlicher Nahverkehr: max. 15min zu FußBahn: max. 15min zu FußAutobahnanschluss: max. 30min mit PKWBank/Geldautomat: max. 3-5min zu FußPost: max. 3-5min zu FußPolizei: max. 3-5min zu Fuß

Lageplan

Inhalt wird geladen
Preise
Kaufpreis
292.500,00 €
Kaufpreis/m²
5.430,74 €
Provision
3% plus 20% USt.
Fakten
Objekttyp
Wohnung
Wohnfläche
54 m²
Kellerfläche
2 m²
Gartenfläche
36 m²
Toiletten
1
Terrassen
1
Baujahr
2017
Gebäude
Neubau
Zustand
neuwertig
Status
verfügbar
A.M.T. Unternehmenberatungsgesellschaft m.b.H.  Bauträger Immobilien

A.M.T. Unternehmenberatungsgesellschaft m.b.H. Bauträger Immobilien

A.M.T. Unternehmenberatungsgesellschaft m.b.H. Bauträger Immobilien